I’ve worked in labs my whole career but I’d never thought much about their design or the way in which architecture can affect how research is done. This changed during the planning and building of the Crick.
In 2008, right at the start of the design process for the new building, I was asked to be part of the lab design committee. In addition to me, the committee included several other group leaders from the founding institutes (NIMR at Mill Hill and the London Research Institute of CRUK) as well as architects, engineers and project managers. Our role was to assist and advise on the plans for the main lab floors of the institute. Similar committees were set up to help design other parts of the building: the animal facilities, public spaces etc.

One of the first things we did as a committee was to go on a week long tour of new research centres in the US. We visited buildings in Stanford. UCSF, Berkeley and Washington DC and at each we got guided tours, talked to facility managers, institute directors and working scientists. Seeing how our architects and engineers looked at these buildings and hearing the questions they asked gave me a new perspective on how architecture can influence the culture and operation of research institute. I realised it’s not just obvious practical aspects of a building (whether the A/C works, is there sufficient space for microscopes, cold rooms etc) but more subtle things that are important when it comes to ‘good’ and ‘bad’ research buildings. It makes a difference whether student and post-doc desks are at the end of their benches or grouped together in a separate area. Are group-leader offices within their lab space or clustered with those of other group leaders? Is there visibility into labs from the corridors? Where do people congregate to have coffee, lunch and chat? I also became familiar with a lot of construction terminology: MEP means Mechanical, Electrical and Plant (something you definitely need to get right); the vibration of a building is measured in a combination of metric (microns) and imperial (inches per second) and you don’t want it, especially near super-resolution microscopes.
I learned a great deal from the discussions we had that week and from how different groups of people think about a building. Now, whenever I visit a lab building, I walk around it with a more discerning eye. The trip also made me appreciate aspects of doing research that I hadn’t noticed before. I realised how different the culture of a research institute is from the large commercial corporations that normally commission multimillion pound buildings. Individual labs within an institute, although relying on common facilities and benefiting from interactions with other labs, are semi-autonomous. My lab could move to a different institute and we’d continue with our work and the old institute would keep functioning unperturbed. The best analogy I could think of to describe this relationship is comparing a research institute to a market: all the stalls in a market benefit from being in the market but no one stall is necessary and individual stall holders could be supportive or competitive with one another. From the perspective of the design of research buildings this places a lot of importance on promoting communication and personal interactions. There need to be social spaces where people will naturally mix, it should be easy to see and walk to any other lab in the building, the design should encourage a neighbourhood feeling amongst adjacent labs. At the same time, the idea that individual labs are self-determining and semi-independent needs to be maintained.
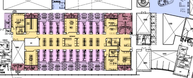
I also realised on the trip how changes in biomedical science get reflected in building design. The increasing importance of other disciplines, particularly computational and ‘dry’ labs, means that there is more demand for office space within research buildings and these need to be as well connected as possible with the ‘wet’ labs. It’s also the case that researchers doing ‘wet’ lab work are spending substantially less time in primary lab space and more time in specialised areas (microscope rooms, tissue culture, cold rooms). For the Crick Institute, as for most biomedical research buildings, the primary lab space is the central feature of the lab floors – around this specialised rooms and dry spaces are organised. But more than half the lab floor space is taken up with these ‘secondary’ spaces, indicating how important they are. Seeing these changes in the buildings we visited made me wonder how long the practice of making primary lab space the main focus of the design will last. If or when this changes, it will radically alter laboratory layouts. It will be interesting to see how this evolves.
After we returned from our fact finding trip the committee spent the next couple of years meeting every fortnight to discuss and critique the plans the architects were drawing up. During this process I learned more construction terminology, including the dread phrase “value engineering”, the translation of which is “cost cutting”. As with any building there had to be compromises, but even though we didn’t get everything we wanted, I hope we got the important things right. Very soon we will know.
